Skip to content

Broadview Terraces Patio Homes

  • Home
  • Community
    • Subdivision Map & Listings
  • Floor Plans
    • CATALINA
    • CORONADO
    • SAN CLEMENTE
    • TAHOE
  • Sales Team
  • Contact

Catalina Floorplan

THE CATALINA fronta

1811 Total Square Feet (3515 with basement)

with optional 3 car Garage

 

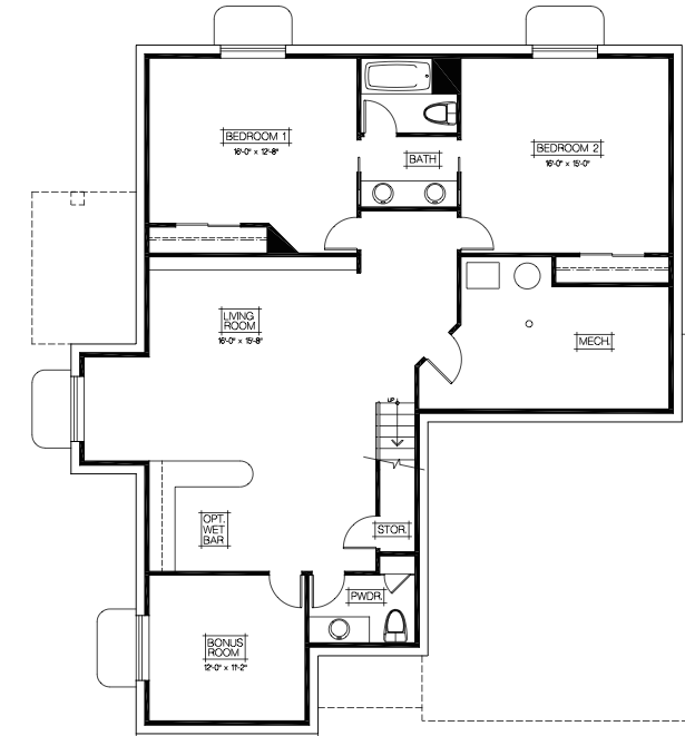
THE CATALINA OPTIONAL BASEMENT

1488 Square Feet Finished / 216 Unfinished

opt basement.png

Share this:

  • Share on X (Opens in new window) X
  • Share on Facebook (Opens in new window) Facebook
Like Loading...

Please call us to schedule a viewing

Broadview Terraces Patio Homes
719-428-5354
  • Facebook
  • Google Maps
  • Google +
Create a website or blog at WordPress.com
    • Broadview Terraces Patio Homes
    • Sign up
    • Log in
    • Copy shortlink
    • Report this content
    • Manage subscriptions

Loading Comments...

    %d